Stylish 1926 Townhouse with Deep Rear Garden, Heated Pool and a Prime Location in the Heart of the City, Overlooking the Rosarium!
This spacious and characterful townhouse is situated in a truly exceptional location. Spread across three floors, it combines space, comfort and authentic charm. The home is just a short walk from Venlo’s city centre and offers beautiful views over the Rosarium.
The property features a large living room, four bedrooms (potentially five), and two bathrooms, making it ideal for a large family or for anyone who values extra living space or a home office. The deep, architect-designed rear garden with heated swimming pool offers plenty of peace, space and privacy.
A uniquely spacious and character-rich home in one of Venlo’s most desirable locations—perfect for those seeking luxury living with the convenience of all amenities just around the corner.
Basement
The basement consists of multiple rooms. Here you will find the utility meters, inverter for the solar panels, laundry connections, water softener and various built-in cupboards.
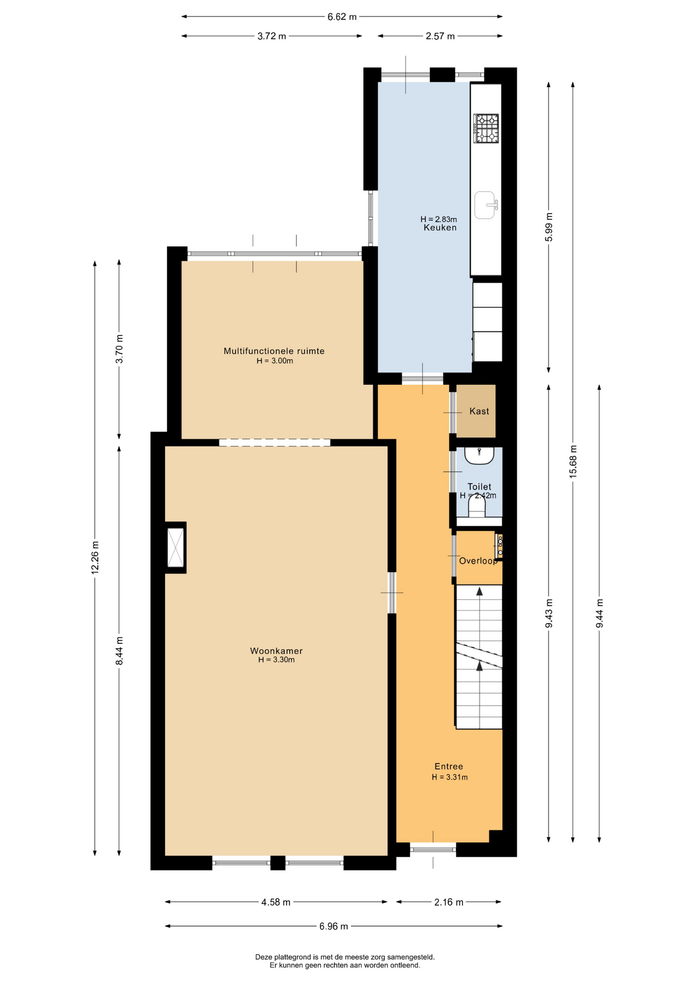
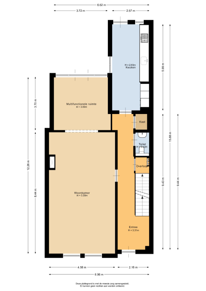
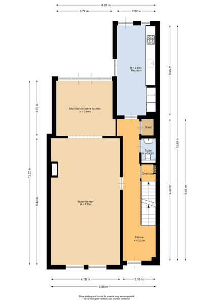
Ground Floor
The wide entrance hall features a Bianco Carrara marble tile floor. From here, you have access to the basement, the toilet with washbasin, and a storage cupboard housing the heat pump and central heating boiler.
The deep and wide living room is fitted with extra-wide French oak herringbone parquet flooring. The impressive high ceiling features original ornaments and cornices with integrated dimmable lighting. At the front, you enjoy unobstructed views of the Rosarium. A gas fireplace adds extra ambience, while the air conditioning provides both cooling and heating. Due to the raised position of the windows relative to the pavement, there is no visibility from outside. At the rear, French doors open directly onto the garden.
The fully equipped kitchen features a linear layout with a tiled floor and is fitted with a 5-burner gas hob, extractor hood, oven, steam oven, dishwasher, refrigerator, freezer and a tall pull-out pantry cabinet.
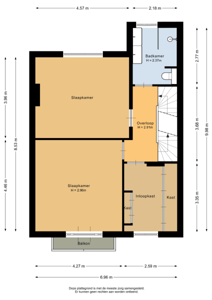
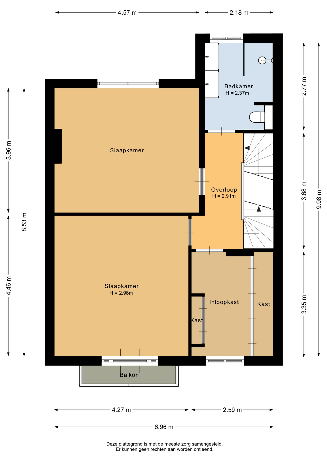
First Floor
From the landing, the two bedrooms, the walk-in closet (optional fifth bedroom) and the bathroom are accessible.
The master bedroom has PVC flooring and provides access to the balcony at the front of the house, offering stunning views over the Rosarium. The second bedroom is fitted with carpet, air conditioning and double French doors to the flat roof at the rear.
The large, high-quality bathroom (renovated in 2025) features a spacious walk-in shower with sunshower, toilet, double washbasin unit, designer radiator and mechanical ventilation. The tiled floor includes electric underfloor heating.
Second Floor
The second floor is reached via a fixed staircase. The landing has carpet and a Velux roof window with screen.
The third bedroom is equipped with air conditioning, carpet flooring and a Velux roof window with screen. A loft above offers additional storage space. The fourth bedroom features carpet flooring and a dormer window.
The bathroom (2019) also benefits from the dormer, providing extra space. It includes a large walk-in shower, washbasin unit, wall-mounted toilet, designer towel radiator and underfloor heating.
Garden
The architect-designed rear garden is wonderfully deep and, thanks to its multiple levels, offers excellent privacy. The garden includes a paved terrace, artificial grass and padauk wooden decking. It is fully walled, ensuring tranquillity despite being just steps away from Venlo’s city centre. The large garden features a heated swimming pool (with heat pump), outdoor electricity points and garden lighting.
Additional Features
- Optional: garage available for rent
- Wooden window frames with HR++ glazing
- 15 solar panels (2023) producing a total of 6,000 kWh
- Air conditioning in living room and 2 bedrooms
- Underfloor heating in bathrooms on 1st and 2nd floors
- Energy label A++ (unique for a house of this era)
- Low-temperature convector radiators throughout
- Heat pump (2025)
- Irrigation system (Rainbird) with drip lines