Ons kantoor is lid van Baerz & Co Luxury Homes; een internationaal platform dat exclusieve woningmakelaars met elkaar verbindt. Neem contact op met ons secretariaat voor meer informatie over het landelijke aanbod, waarvan u hieronder een selectie kunt bekijken.

ROTTERDAM
Plasoord 13 - 3054 LJ
Netherlands

Joris van Oosten profile image
Joris van Oosten
Real estate agent
€1,250,000 k.k.
Living Area
119m2
Plot Size
226m2
Bedrooms
4

Description

Pictures say more than 1000 words and this sublime location needs no further description.

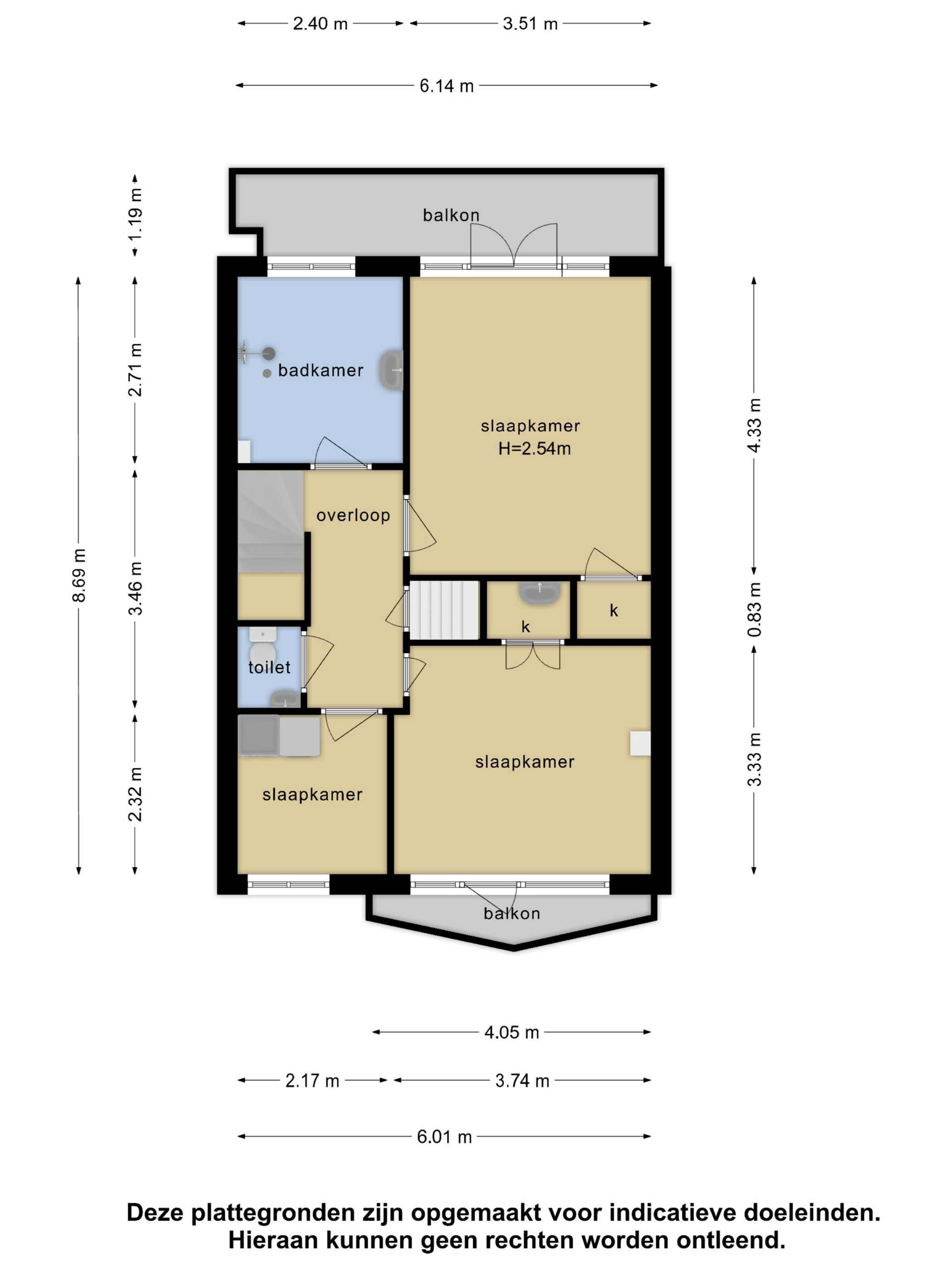
Of the 29m2 remaining indoor space, 7m2 is the basement and 22m2 is the surface of the 2nd floor. If the current dormer window at the rear is raised a few cm, the 22m2 will count as living area.

By installing a dormer window at the front, the usable living area will increase even further, even if the dormer window at the back is not increased.

Particularities:
- built in 1927
- located on 226m2 of private land
- possibility to moor a sloop in the backyard
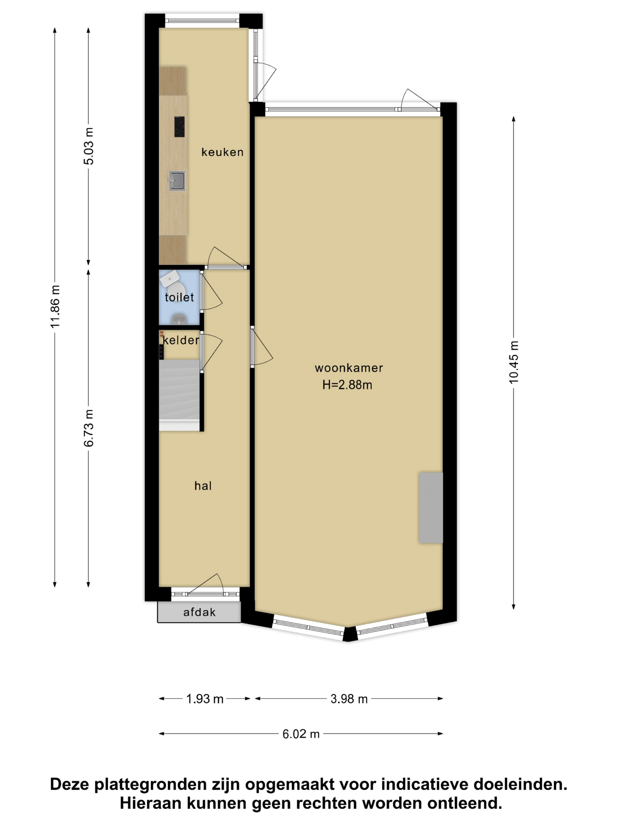
- living area of ??approx. 119 m2 (in accordance with NEN-2580)
- usable area of ??other indoor space approx. 29 m2 (in accordance with NEN-2580)
- building-related outdoor space approx. 10 m2 (in accordance with NEN-2580)
- partly fitted with double glazing
- hot water and heating via central heating combi boiler from 2021
- energy label D

Delivery in consultation.

For additional information about this property, you can visit its own website (address + house number).

J.J. van Oosten Makelaardij is the seller's NVM broker. We advise you to engage your own NVM broker to represent your interests when purchasing this object.
No rights can be derived from this offer text.

The Measurement Instruction is based on NEN2580. The Measuring Instruction is intended to apply a more unambiguous method of measuring to provide an indication of the usable surface. The Measurement Instruction does not completely exclude differences in measurement results, for example due to differences in interpretation, rounding off or limitations in carrying out the measurement.

Features

Transfer of ownership
Asking Price
€ 1.250.000 k.k.
Status
verkocht onder voorbehoud
Acceptance
in overleg
Construction
Kind of house
Eengezinswoning
Building type
tussenwoning
Construction period
1927
Energy rating
D
Roof type
zadeldak
Bedrooms
4
Bathrooms
1
Surface Areas And Volume
Living Area
119 m2
Other indoor space
29 m2
Exterior space attached to the buildinge
10 m2
Volume in cubic meters
522 m3
Plot Size
226 m2
Facilities
Tv kabel
Buitenzonwering
Aan water
In woonwijk
Vrij uitzicht
Aan vaarwater
Baerz & Co Property Brochure

Brochure

Videos

Floor Plans

J.J. Van Oosten Makelaardij BV

Straatweg 225
3054 AG Rotterdam

info@vanoostenmakelaardij.nl
+31 10 422 11 00

www.vanoostenmakelaardij.nl

Information / Viewing request

Joris van Oosten profile image
Joris van Oosten
Real estate agent

Buying a Luxury Property in Rotterdam

Rotterdam offers sophisticated living for a discerning international community, with exceptional cultural, business, and lifestyle opportunities. Residents benefit from world-class services, distinctive homes, and a globally connected urban environment.