Baerz & Co is een landelijk samenwerkingsverband van zorgvuldig geselecteerde boutique luxury makelaars. Samen vormen wij één netwerk, met één gedeeld aanbod. De woningen die u op onze website ziet, zijn afkomstig van alle aangesloten kantoren binnen Baerz & Co. Daardoor is niet ieder object rechtstreeks door ons kantoor in verkoop, maar door een gespecialiseerde collega binnen ons netwerk. Heeft u een woning gevonden die u aanspreekt en wilt u meer informatie? Dan brengen wij u graag persoonlijk in contact met de betreffende verkoopmakelaar, zodat u direct en zorgvuldig wordt begeleid.

MIJDRECHT
Rozenobel 25 - 3641 NJ
Netherlands

€878,000
Living Area
178m2
Plot Size
400m2
Bedrooms
4

Description

At the end of a green, and quiet lane stands this characterful semi-detached townhouse, set in an exceptionally pleasant location. Here, you enjoy a great deal of privacy and a sense of openness, partly thanks to the views over the surrounding meadows, visible from the side window of the living room and from the upper floors. Rozenobel is known as one of the most beautiful avenues in Mijdrecht, featuring wide pavements, ample parking, and an abundance of greenery.

This generously sized home offers plenty of living space, partly due to the rear extension, and features four full-sized bedrooms. Large windows provide an abundance of natural light and create a pleasant connection with the outdoors. The sunny south-facing backyard is a wonderful place to relax and enjoy the peace and space.

The garage is practically laid out and divided into two sections: at the front, there is a convenient storage area with connections for a washing machine and dryer, while the rear is currently used as an atmospheric lounge area — a versatile extra living space. The house is also well-equipped: a spacious driveway with room for at least three cars, a charging point for an electric vehicle, and 14 solar panels contribute to comfortable and future-proof living. The generous 400 m² plot completes the picture and enhances the sense of space around the property.

The location is ideal: situated in a residential area with all daily amenities within walking distance, such as public transport, primary and secondary schools, and an AH local supermarket. The vibrant center of Mijdrecht, offering a wide range of shops and restaurants, is also nearby. In addition, cities such as Amsterdam, Utrecht, Woerden, Hilversum, and Schiphol can be reached within approximately twenty minutes.

A spacious and comfortable family home in a pleasant and quiet location, with everything within easy reach.

Layout of this charming townhouse:

GROUND FLOOR
Upon entering the property, the generous setup immediately stands out: a wide driveway with space for no fewer than three cars — always a parking spot when you return home. Through the entrance, you step into the welcoming hallway, which features the staircase, meter cupboard, a practical storage closet, a toilet with washbasin, and additional storage under the stairs — ideal for shoes or everyday items you prefer to keep out of sight.

The living room has a cozy L-shaped layout. At the front, a large window provides pleasant natural light and an open connection to the quiet street. The seating area with fireplace forms the warm heart of the home — a place to truly unwind. On the side, a large window offers unique views over the meadows, beautifully blending indoor and outdoor living. The wooden flooring enhances the calm and timeless atmosphere.

At the rear, the house has been extended to create a spacious open-plan kitchen that truly forms the centerpiece of the home. A skylight allows beautiful natural light to flood in throughout the day. The tiled floor with underfloor heating ensures comfort in every season. The kitchen is both practical and luxurious, featuring a kitchen island with sink, dishwasher, and a Grohe boiling water tap. On the opposite side, you’ll find the cooking area with a 5-burner gas stove, oven, and combination oven. The kitchen easily accommodates a large dining table, making it the perfect setting for long dinners and social gatherings. French doors and a separate door provide direct access to the garden, seamlessly connecting indoor and outdoor living.

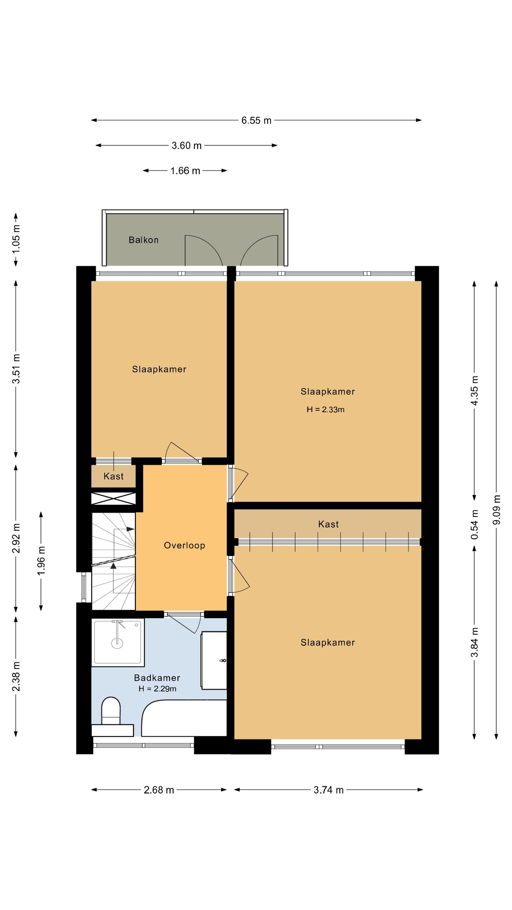
FIRST FLOOR
The spacious landing provides access to three large bedrooms and the bathroom, and feels bright and airy due to the well-designed layout.

At the rear is a generous bedroom with a full-length built-in wardrobe. An extra insulated wall towards the adjacent room ensures peace and privacy, making this a comfortable and quiet master bedroom.

The bathroom is well-appointed and generously sized. The floor features underfloor heating for added comfort. It includes a bathtub, toilet, walk-in shower with glass door, and both a rain shower and hand shower. The vanity unit with mirror and infrared panel adds a modern and practical touch.

At the front are two additional well-sized bedrooms, both with access to a balcony. This not only provides extra light and ventilation but also a pleasant connection to the outdoors. One of the rooms also features a built-in wardrobe for extra storage.

SECOND FLOOR
The second floor is surprisingly spacious and bright. The landing is generously sized and ideal for use as a workspace or home office. Thanks to the windows in the stairwell, there is an abundance of natural light, creating an open and pleasant atmosphere.

The bedroom on this floor has a playful layout. A high window provides beautiful light, while the dormer adds extra space and comfort. The room also features a built-in mirrored wardrobe and additional storage in the sloped ceiling area. There is also a convenient sink and unobstructed views over the meadows, further enhancing the sense of space and freedom.

From the landing, there is access to a separate storage room with the central heating boiler. This space also offers potential for creating a second bathroom, if desired.

GARAGE / MULTIFUNCTIONAL SPACE
The former garage has been cleverly divided into two functional areas. At the front, there is a practical storage space with washing machine connection and heating — ideal as a utility room or additional storage.

The rear is currently used as a cozy lounge area, an extension of the home where you can relax. This space is highly versatile and can easily be converted into an office, playroom, studio, or additional (work) room. It can be accessed dry from the house via the covered area.

GARDEN
The south-facing backyard offers a wonderful combination of sun, privacy, and greenery. Adjacent to the house and garage is a pleasant covered area, allowing you to sit outside sheltered early in the year and enjoy the outdoors well into the season.

The garden has been thoughtfully landscaped with a mix of terraces, borders, and greenery. A small greenhouse offers space for homegrown produce and hobbies, while fruit trees add a playful and natural character. The layout provides multiple seating areas, each offering a different experience of sun and privacy.

At the front of the house, a pleasant seating area can also be created, allowing you to choose the perfect spot to enjoy either the sun or the tranquility at any time of day.

HIGHLIGHTS
Semi-detached townhouse at the end of a green, quiet avenue
Charming and perfectly maintained home with a total living area of 204 m²
Extended open-plan kitchen with skylight and underfloor heating
Four full-sized bedrooms
Sunny south-facing backyard with plenty of privacy
Garage divided into storage/laundry + lounge/workspace
14 solar panels and EV charging point
Spacious driveway for three cars
Centrally located near schools, shops, and public transport
Within approx. 20–30 minutes of Amsterdam, Utrecht, Schiphol, and Hilversum

In short: a wonderfully spacious and comfortable family home in an exceptionally pleasant location, where peace, space, and accessibility come together effortlessly.

MIJDRECHT

Mijdrecht, located in the heart of the municipality of De Ronde Venen, is a hidden gem for those seeking the perfect balance between rural tranquility and urban proximity. This charming village, surrounded by expansive polder landscapes and green nature reserves, offers an ideal living environment for families, commuters, and nature lovers alike.

One of Mijdrecht’s greatest strengths is its excellent location. While enjoying a peaceful village atmosphere, major cities such as Amsterdam, Utrecht, and Amstelveen are only about a 30-minute drive away. The nearby N201 provides quick access to the rest of the Randstad, and public transport is well organized. This allows you to benefit from city proximity without the daily hustle and bustle.

For nature lovers, Mijdrecht is a true paradise. The surrounding area offers endless opportunities for walking, cycling, and outdoor relaxation. The nearby Vinkeveense Plassen is a popular destination for water sports enthusiasts and recreation. Whether you enjoy boating, swimming, or simply relaxing with a picnic by the water — it’s all here.

Mijdrecht also provides all the amenities needed for comfortable daily living. The cozy village center offers a wide range of shops, supermarkets, boutiques, and restaurants. For children, there are plenty of playgrounds, schools, and sports clubs, from football and hockey to tennis and fitness. Additionally, Mijdrecht has various healthcare facilities, including general practitioners and dentists.

Features

Solar panels
Transfer of ownership
Asking Price
€ 878.000
Status
beschikbaar
Acceptance
in overleg
Construction
Kind of house
Herenhuis
Building type
twee onder een kapwoning
Construction period
1974
Energy rating
B
Roof type
zadeldak
Bedrooms
4
Bathrooms
1
Surface Areas And Volume
Living Area
178 m2
Other indoor space
26 m2
Exterior space attached to the buildinge
11 m2
Volume in cubic meters
692 m3
Plot Size
400 m2
Facilities
Mechanische ventilatie
Tv kabel
Rookkanaal
Zonnepanelen
Aan rustige weg
In woonwijk
Vrij uitzicht
Beschutte ligging
Baerz & Co Property Brochure

Brochure

Videos

Floor Plans

Graal Makelaardij

Rapenburg 4
2311 EV Leiden

info@graalmakelaardij.nl
+31 (0)71 51 61 000

www.graalmakelaardij.nl

Information / Viewing request

Michiel de Jong RM profile image
Michiel de Jong RM
Real Estate Agent

Buying a Luxury Property in Mijdrecht

Mijdrecht offers refined living within a discreet community, ideal for global buyers seeking tranquility, robust services, and direct access to the cultural and economic dynamism of the region.