Baerz & Co is een landelijk samenwerkingsverband van zorgvuldig geselecteerde boutique luxury makelaars. Samen vormen wij één netwerk, met één gedeeld aanbod. De woningen die u op onze website ziet, zijn afkomstig van alle aangesloten kantoren binnen Baerz & Co. Daardoor is niet ieder object rechtstreeks door ons kantoor in verkoop, maar door een gespecialiseerde collega binnen ons netwerk. Heeft u een woning gevonden die u aanspreekt en wilt u meer informatie? Dan brengen wij u graag persoonlijk in contact met de betreffende verkoopmakelaar, zodat u direct en zorgvuldig wordt begeleid.

BERGEN OP ZOOM
Lievevrouwestraat 54 - 4611 JL
Netherlands

Michiel de Jong RM profile image
Michiel de Jong RM
Real Estate Agent
€725,000 k.k.
Living Area
269m2
Plot Size
112m2
Bedrooms
4

Description

In one of the most beautiful streets of Bergen op Zoom located special and historic monument ‘De Eycke’. The object exudes character, allure and offers ample space for a complete family.

On the first floor you will find a spacious living room which can be closed en suite by sliding doors and both rooms have a fireplace. At the rear is the cozy kitchen. Between the back room and kitchen is a beautiful light from the main roof through 4 skylights.
The floor is divided by two spacious bedrooms, the room is used as a study and the room behind is used as a master bedroom with access to the bathroom and large walk-in closet.
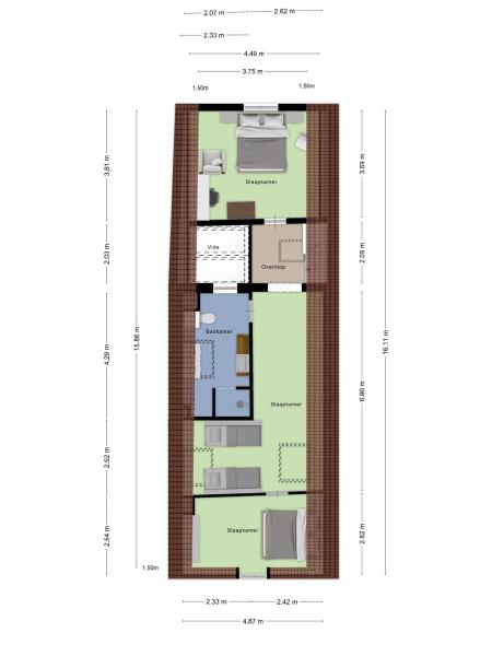
On the second floor there is a spacious landing with sleeping facilities as well as 2 spacious bedrooms with a second complete bathroom and laundry room.
Unique is the vaulted cellar with well, built around 1600 and ideal to use as a hobby room, wine cellar, dinner / drinks with friends, etc.

Furthermore, the object vv. a city garden accessible from the kitchen and a roof terrace accessible from the master bedroom.

The location is beautiful with views of the Gevangenepoort and within walking distance of all amenities.
Parking is available nearby with permit. There is also a possibility to rent / buy a parking space in the area.

Curious and like to take a look on site? We invite you for a viewing!

Description:
Ground floor:
Hall / vestibule with fitted wardrobes and stairs to the 1st floor, wall finish stucco, tile floor, ceiling finished with stucco;

cupboard with 14 groups, power, 4 RCD and fiberglass connection;

luxury and generously tiled toilet with a wall closet, urinal and a sink;

living room, divided into a front and back room with sliding door, with 2 fireplaces with a fireplace, wall finish stucco, wooden floor, ceiling finished with stucco;

open kitchen, which includes a longitudinal installation kitchen with cooking island, equipped with a granite countertop with sink, built-in 5-burner gas hob, -position American fridge / freezer, -steam oven, -two warming drawers, -dishwasher and a hood, wall finish stucco, tiled floor, ceiling finished with spray painting vv. recessed spotlights, garden doors to garden / patio;

Utility room with close in boiler and sink unit vv. sink, wall finish stucco, tile floor, ceiling finished with stucco;

spacious basement (anno 1600), equipped with heating, electricity and a well.

1st floor:
Landing with a 4 storage closets and a fixed staircase to the 2nd floor, wall finish stucco, wood floor, ceiling finished with stucco;

spacious front bedroom with fitted wardrobe wall, wall finish stucco, wooden floor, ceiling finished with stucco;

master bedroom back, wall finish stucco, PVC floor, ceiling finished with stucco, garden doors to roof terrace and sliding glass door to the bathroom;

roof terrace, with decking and electricity;

tiled bathroom en-suite, equipped with a freestanding bath, walk-in shower, infrared sauna, bathroom cabinet with a sink and a door to separate toilet and walk-in closet;

separate tiled toilet with a wall closet.

2nd floor:
Landing with HR-combi boiler and 3 skylights, wall finish stucco, PVC floor, sloping roof surfaces finished with stucco;

front bedroom with a dormer window and air conditioning installation, wall finish stucco PVC floor, sloping roof surfaces finished with stucco;

rear bedroom with air conditioning system, wall finish stucco PVC floor, sloping roof surfaces finished with stucco;

tiled bathroom, equipped with a walk-in shower, bathroom cabinet with a sink, wall closet, washer / dryer connections and a skylight.

Garden:
Landscaped city garden, terrace paved with decorative paving and equipped with electricity and garden lighting.

Built:
House:
Traditionally built, built in brick, first floor in concrete / wood, wooden floors, pitched roof covered with tiles and flat roof construction covered with bituminous roofing.

Insulation:
The house has cavity wall and roof insulation as well as fully insulating glazing and windows in wooden frames. Also, the house on the front and rear of the first floor recently vv. vacuum glass.

Heating and hot water:
The house has central heating. The HR-combi boiler (Remeha, built in 2009) is located on the second floor and also provides hot water. Also, the house has a close in boiler which is located in the pantry.

Features

Air conditioning
Transfer of ownership
Asking Price
€ 725.000 k.k.
Status
beschikbaar
Acceptance
in overleg
Construction
Kind of house
Eengezinswoning
Building type
tussenwoning
Construction period
1881
Roof type
samengesteld dak
Bedrooms
4
Bathrooms
2
Surface Areas And Volume
Living Area
269 m2
Other indoor space
0 m2
Exterior space attached to the buildinge
19 m2
Volume in cubic meters
954 m3
Plot Size
112 m2
Facilities
Airconditioning
Dakraam
Sauna
Glasvezel kabel
Natuurlijke ventilatie
In centrum
Baerz & Co Property Brochure

Brochure

Floor Plans

Graal Makelaardij

Rapenburg 4
2311 EV Leiden

info@graalmakelaardij.nl
+31 (0)71 51 61 000

www.graalmakelaardij.nl

Information / Viewing request

Michiel de Jong RM profile image
Michiel de Jong RM
Real Estate Agent

Buying a Luxury Property in Bergen Op Zoom

Bergen Op Zoom offers a harmonious blend of heritage properties, dynamic community life, and world-class services. Its appeal lies in the authentic Dutch urban experience shaped for a discerning, globally-oriented clientele.