Ons kantoor is lid van Baerz & Co Luxury Homes; een internationaal platform dat exclusieve woningmakelaars met elkaar verbindt. Neem contact op met ons secretariaat voor meer informatie over het landelijke aanbod, waarvan u hieronder een selectie kunt bekijken.

Villa for sale in BADHOEVEDORP

BADHOEVEDORP Prins Florislaan 13 - 1171 LN The Netherlands


Steijn Schothorst profile image
Steijn Schothorst
Real Estate Agent
+316 53436695
info@heerenmakelaars.nl

Heeren Makelaars
Stadionweg 75
1077 SE Amsterdam
NETHERLANDS
+31 0204702255
www.heerenmakelaars.nl
info@heerenmakelaars.nl

Living area
359m2
Plot size
1064m2
Bedrooms
3

Description

Prins Florislaan 13, 1171 LN Badhoevedorp

Exclusive, fully renovated villa of approximately 359 sqm, spread over two floors plus a loft attic, set on a generous plot of around 1,064 sqm. This elegant home, redesigned by renowned architect Anne Claus, boasts a beautifully landscaped garden (approx. 617 sqm), a stunning covered terrace (approx. 22 sqm), three spacious bedrooms, two luxurious bathrooms, a garage, a large internal storage room, and a private gym. The villa holds an energy label A and is equipped with a full home automation system for optimal living comfort.

Location & Accessibility

Prins Florislaan is a wide, leafy avenue located in a quiet and child-friendly villa neighbourhood in the popular town of Badhoevedorp. In the immediate vicinity you will find several primary schools and sports facilities. Badhoevedorp Tennis Club and the exclusive golf course The International are just a short distance away. For daily shopping, the village offers a wide selection of supermarkets and specialist shops, complemented by trendy boutiques and pharmacies. For sports and leisure, the beautiful Amsterdamse Bos is just minutes away.

The villa benefits from excellent access to major motorways (A5, A9, A10), making Haarlem, Amstelveen, and Schiphol Airport easy and quick to reach. Moreover, Amsterdam city centre is just a 10-minute drive away.

In short, a unique residential location in Badhoevedorp with all amenities within easy reach.

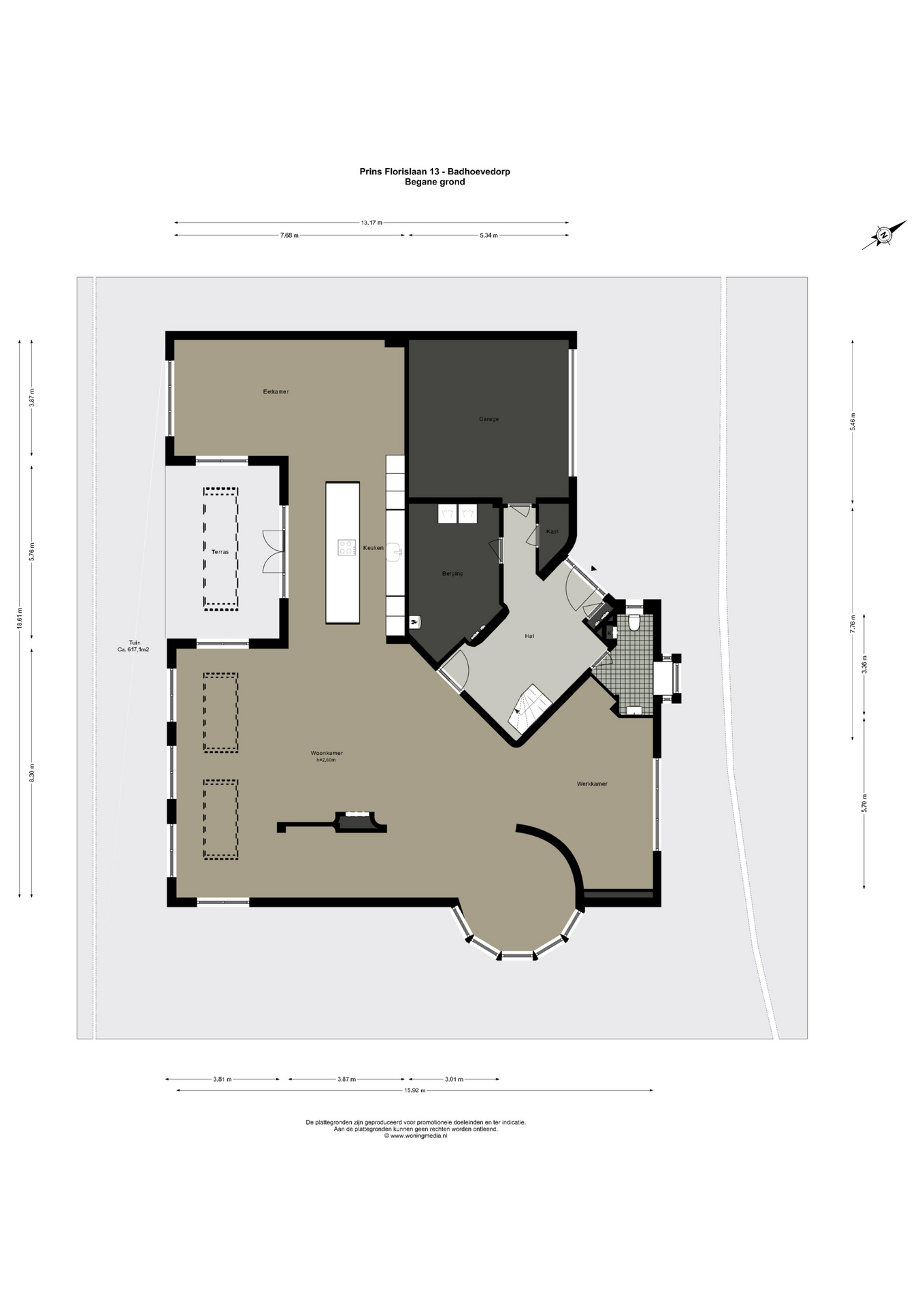
Layout

The elegant front garden leads to the impressive hallway, which provides access to all rooms on the ground floor. Immediately to the right is the spacious internal storage room housing the central heating system, laundry chute, water softener, and the home automation controls. Opposite, you will find a built-in cupboard and adjacent to it, the garage—currently set up as a fitness room. To the left of the hallway is a large guest WC with washbasin.

The expansive living room, featuring floor-to-ceiling windows and a stunning round bay window, is bathed in natural light, instantly creating a sense of space and tranquillity. The elegant fireplace forms a central feature of the open-plan living area, which flows seamlessly into the luxurious kitchen. The kitchen is equipped with high-end built-in appliances and modern conveniences, including a generous island of approx. 5 metres, Quooker tap, dishwasher, fridge/freezer combination, and an induction hob with integrated extractor. The exclusive book-matched marble worktop extends into the sink, giving the kitchen a refined and sophisticated finish. French steel doors open onto the delightful covered terrace and beautifully landscaped garden. Adjoining the kitchen is the spacious dining room.

A staircase in the hallway leads to the first floor, where you will find three generously sized bedrooms. Thanks to their large dimensions, it would be simple to create a fourth or even fifth bedroom. The luxurious master bedroom features a freestanding bathtub, an en-suite bathroom, built-in wardrobes, and a spacious walk-in closet. The large bathroom is fitted with a double washbasin, walk-in shower, and WC. On the opposite side of the hallway, the second bathroom is also equipped with a walk-in shower, WC, and washbasin.

The loft attic, accessible via a retractable ladder from the first floor, offers additional storage space.

This villa was fully renovated in 2022, with no expense spared. Only the highest quality materials were used. In addition, a generous extension was realised, significantly increasing the living area.

Details

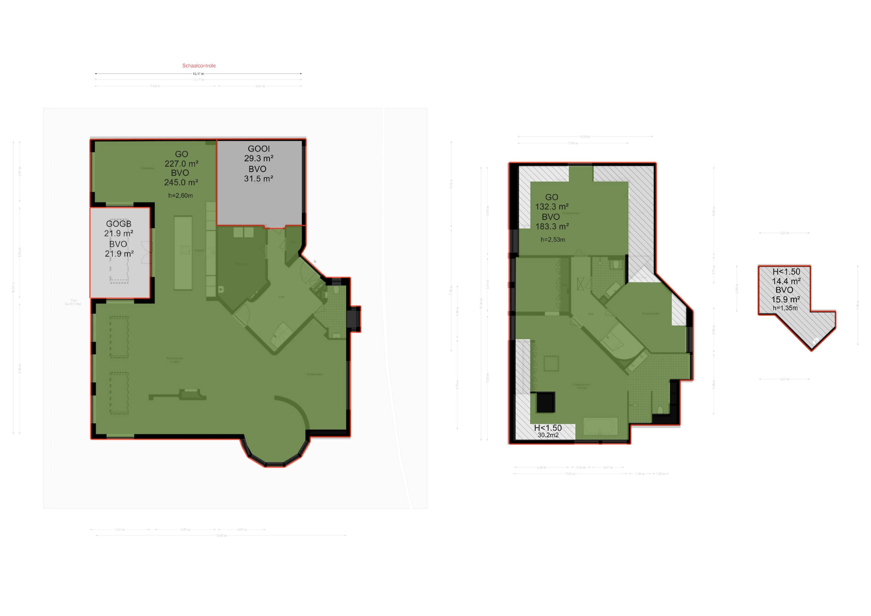
- Living area approx. 359 sqm (NEN-2580 certificate available);
- Spacious and sunny garden of approx. 617 sqm;
- Covered terrace of approx. 22 sqm with two built-in heaters;
- Built-in heat recovery unit (WTW) and 25 solar panels;
- Fully and luxuriously renovated in 2022;
- Three generous bedrooms;
- Two bathrooms;
- Loft attic;
- Garage and storage room;
- Polished concrete flooring with underfloor heating;
- Built-in fireplace;
- Completion: to be agreed.

This information has been compiled with due care. However, we accept no liability for any inaccuracies, incompleteness, or the consequences thereof. All stated dimensions and surface areas are indicative. The buyer is responsible for carrying out their own due diligence on all matters of importance to them. The estate agent acts on behalf of the seller. We recommend engaging a qualified (NVM) estate agent to guide you through the purchase process. Should you have specific requirements regarding the property, we advise you to express these clearly and conduct independent research accordingly. If you choose not to engage professional representation, the law considers you sufficiently expert to assess all relevant aspects. NVM terms and conditions apply.

Features

Transfer of ownership
price
€ 2.450.000 k.k.
Status
beschikbaar
Acceptance
in overleg
Construction
Kind of house
Villa
Building type
vrijstaande woning
Construction period
1991
Energy rating
A
Roof type
samengesteld dak
Bedrooms
3
Bathrooms
2
Surface Areas And Volume
Living area
359 m2
Other indoor space
29 m2
Exterior space attached to the building
22 m2
Volume in cubic meters
1215 m3
Plot size
1064 m2
facilities
Alarminstallatie
Tv kabel
Airconditioning
Glasvezel kabel
Domotica
Zonnepanelen
Balansventilatie
Aan rustige weg
In woonwijk
Vrij uitzicht
Baerz & Co Property Brochure

Brochure

Information / Viewing request

Videos

Photos

Floor Plans