Baerz & Co is een landelijk samenwerkingsverband van zorgvuldig geselecteerde boutique luxury makelaars. Samen vormen wij één netwerk, met één gedeeld aanbod. De woningen die u op onze website ziet, zijn afkomstig van alle aangesloten kantoren binnen Baerz & Co. Daardoor is niet ieder object rechtstreeks door ons kantoor in verkoop, maar door een gespecialiseerde collega binnen ons netwerk. Heeft u een woning gevonden die u aanspreekt en wilt u meer informatie? Dan brengen wij u graag persoonlijk in contact met de betreffende verkoopmakelaar, zodat u direct en zorgvuldig wordt begeleid.

AMSTERDAM
Valeriusstraat 170 H - 1075 GH
Netherlands

Michiel de Jong RM profile image
Michiel de Jong RM
Real Estate Agent
€2,500,000 k.k.
Living Area
190m2
Plot Size
272m2
Bedrooms
4

Description

Valeriusstraat 170 H, 1075 GH AMSTERDAM

Situated in one of the most sought-after locations in Amsterdam Zuid, this spacious and elegantly finished freehold property of approximately 190 m² spans three floors and features a generous rear garden, two balconies, and a practical basement. With its bright living area, modern kitchen, four well-proportioned bedrooms and two luxurious bathrooms, this home offers exceptional living comfort for families and anyone seeking space in a prime Amsterdam Zuid location.

Location & Accessibility:
The property is situated in the highly sought-after district of (Oud-)Zuid, close to the Cornelis Schuytstraat with its exclusive boutiques, the Jacob Obrechtstraat and the beautiful Vondelpark. All essential amenities, including well-regarded schools and public transport options (various tram and bus lines), are within walking distance. There are also numerous cafés and restaurants nearby, as well as a playground on the Valeriusplein, and the shopping areas of the Van Baerlestraat, Beethovenstraat and P.C. Hooftstraat on one side, and cultural landmarks such as the Concertgebouw, Rijksmuseum and Museumplein on the other. The apartment is also conveniently located in relation to several major arterial roads, with Schiphol Airport reachable within approximately 15 minutes. Parking is arranged through a permit system, and paid parking is available directly in front of the property.

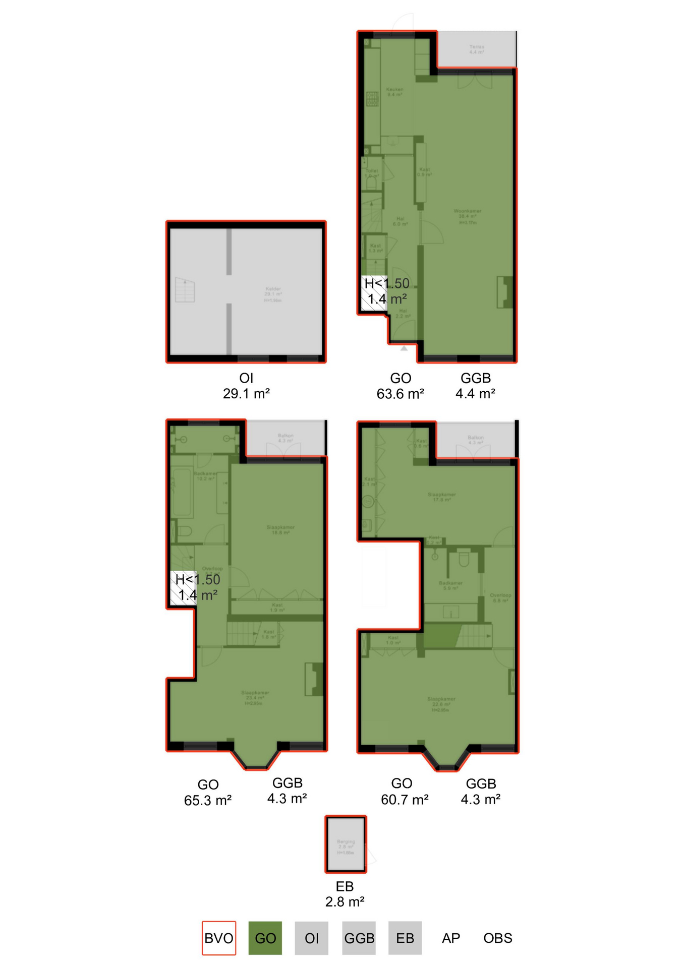
Layout

Ground Floor
Through the private entrance, you enter the vestibule and hallway, which provides access to the rooms on the ground floor. Here you will find a separate toilet with a washbasin and a practical storage cupboard with access to the basement, consisting of two well-usable spaces—ideal for storage, a hobby room or a wine cellar. The generous living room extends across the full length of the property and is accessed through an elegant steel-look door. Thanks to the high ceilings and large windows, the living area is wonderfully bright, offering a comfortable seating area with a gas fireplace at the front and ample space for a large dining table at the rear.

The modern kitchen is situated at the back and is equipped with an induction hob with integrated extraction, refrigerator, freezer, oven, combi-oven, dishwasher and a sink with Quooker tap. Both the kitchen and dining area provide access to the terrace through French doors. From the terrace, a staircase leads down to the spacious rear garden, a delightful outdoor area with plenty of room for lounge seating, a dining table and a safe play space for children.

First Floor
A staircase leads to the first floor. The central landing gives access to two bedrooms and the luxurious bathroom. At the front is a bedroom fitted with neat built-in wardrobes and a charming bay window, complete with custom-made cushions to create a cosy seating nook. At the rear is the master bedroom, also featuring built-in wardrobes and air conditioning, with direct access to a balcony overlooking the green inner gardens. The bathroom on this floor is fully finished in the same style as the other sanitary spaces and includes a double shower, double washbasin with cabinet, bathtub and toilet.

Second Floor
The second floor offers another spacious landing, two large bedrooms and a bathroom. Both rooms are equipped with air conditioning and built-in wardrobes, providing ample storage space. The bedroom at the rear also features French doors leading to the second balcony. The bathroom on this level is once again stylishly finished and fitted with a walk-in shower, washbasin with cabinet and toilet.

Key Features
- Apartment right of approx. 190 m² (measured in accordance with NEN-2580 standards);
- Spacious rear garden of approx. 52 m² (measured in accordance with NEN-2580 standards) with storage shed;
- Four generous bedrooms;
- Two bathrooms;
- Two balconies;
- Wooden flooring throughout the property;
- Gas fireplace with remote control;
- Basement with ample storage space;
- Energy label C;
- Bedrooms equipped with air conditioning;
- Underfloor heating in the living room, hallway, kitchen and bathrooms;
- Double-glazed window frames throughout;
- Freehold property (no ground lease);
- Small-scale homeowners’ association (VvE) consisting of two members, self-managed;
- Monthly VvE contribution €300;
- Transfer in consultation.

This information has been compiled by us with the utmost care. However, we do not accept any liability for any incompleteness, inaccuracy or otherwise, nor for the consequences thereof. All stated measurements and surface areas are indicative. The buyer has a duty to conduct their own investigation into all matters that are important to them. With regard to this property, the estate agent acts as the seller’s representative. We advise you to engage a qualified (NVM) estate agent to assist you in the purchasing process. If you have specific requirements regarding the property, we recommend communicating these to your purchasing agent in a timely manner and conducting (or having conducted) independent research accordingly. If you do not engage a qualified representative, you are deemed by law to be sufficiently expert to oversee all matters of importance yourself. The NVM conditions apply.

Features

Transfer of ownership
Asking Price
€ 2.500.000 k.k.
Status
verkocht onder voorbehoud
Acceptance
in overleg
Construction
Kind of house
Dubbel benedenhuis
Building type
appartement
Construction period
1911
Energy rating
C
Roof type
plat dak
Bedrooms
4
Bathrooms
2
Surface Areas And Volume
Living Area
190 m2
Other indoor space
29 m2
Exterior space attached to the buildinge
13 m2
Volume in cubic meters
817 m3
Plot Size
272 m2
Facilities
Mechanische ventilatie
Tv kabel
Natuurlijke ventilatie
Aan rustige weg
In centrum
In woonwijk
Baerz & Co Property Brochure

Brochure

Videos

Virtual Tours

VIRTUAL TOUR
Virtual Tour Valeriusstraat 170 H

Graal Makelaardij

Rapenburg 4
2311 EV Leiden

info@graalmakelaardij.nl
+31 (0)71 51 61 000

www.graalmakelaardij.nl

Information / Viewing request

Michiel de Jong RM profile image
Michiel de Jong RM
Real Estate Agent

Buying a Luxury Property in Amsterdam

Amsterdam offers a cosmopolitan lifestyle defined by heritage, connectivity, and discreet luxury. Residents benefit from a robust international community, curated services, and vibrant culture. The city’s enduring appeal lies in its blend of history, sophistication, and progressive spirit.