Baerz & Co is een landelijk samenwerkingsverband van zorgvuldig geselecteerde boutique luxury makelaars. Samen vormen wij één netwerk, met één gedeeld aanbod. De woningen die u op onze website ziet, zijn afkomstig van alle aangesloten kantoren binnen Baerz & Co. Daardoor is niet ieder object rechtstreeks door ons kantoor in verkoop, maar door een gespecialiseerde collega binnen ons netwerk. Heeft u een woning gevonden die u aanspreekt en wilt u meer informatie? Dan brengen wij u graag persoonlijk in contact met de betreffende verkoopmakelaar, zodat u direct en zorgvuldig wordt begeleid.

AMSTERDAM
Kijkduinstraat 75 H - 1055 XS
Netherlands

Michiel de Jong RM profile image
Michiel de Jong RM
Real Estate Agent
€1,050,000 k.k.
Living Area
120m2
Plot Size
N/A
Bedrooms
4

Description

Kijkduinstraat 75 H, 1055 XS Amsterdam

Located on the quiet Kijkduinstraat, this charming and well-laid-out ground-floor apartment of approximately 120 m² offers a perfect combination of space, light, and comfort in a pleasant and green part of the city.

The property features a spacious living room, a modern open-plan kitchen with extension, four well-proportioned bedrooms—of which the master bedroom includes an en-suite walk-in closet—and a beautifully landscaped southwest-facing garden. In addition, there are balconies at both the front and rear, as well as ample storage space throughout. A move-in ready home offering an ideal balance between tranquil living and urban vibrancy.

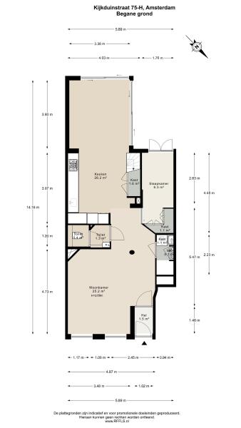
Layout

Ground floor
You enter the property through your private entrance into a vestibule, which leads to the bright living room at the front. The living area is generously sized and benefits from large windows, allowing for an abundance of natural daylight.

At the rear, there is a separate bedroom, ideal as a guest room, home office, or study, featuring built-in wardrobes and French doors opening onto the garden. Adjacent is the attractive extension housing a spacious open-plan kitchen, equipped with various built-in appliances, including an electric oven, induction hob with integrated extraction, fridge/freezer combination, and a Quooker providing both boiling and sparkling water.

The sliding glass doors surrounding the extension create a seamless connection between indoor and outdoor living, with direct access to the sunny garden. The garden is well-maintained and includes a practical shed for additional storage.

Centrally located on this level is a separate toilet, as well as a dedicated space for the utility connections, including the washing machine.

First floor
The internal staircase leads to the first floor. The landing provides access to all rooms and benefits from pleasant natural light, as well as access to the rear balcony.

At the rear are two well-sized bedrooms, both featuring French doors opening onto the balcony, creating a strong connection between indoor and outdoor space while enjoying plenty of light and a green outlook.

The modern bathroom is located on the landing and is finished in a calm and well-maintained style. It includes a bathtub, walk-in shower, toilet, and a stylish vanity unit with washbasin.

At the front of the property is the spacious master bedroom, which benefits from wide windows and abundant natural light. Adjacent is a generous walk-in closet, offering extensive storage as well as space for a dressing area or workspace. From this room, the front balcony is also accessible.

Garden and storage
The property features a beautifully landscaped and sunny southwest-facing garden, allowing for plenty of sunshine throughout the afternoon and evening. The garden offers multiple seating areas, providing ample space for both a dining table and a lounge area.

At the rear of the garden is a practical detached shed. In addition, the property includes a second, separate storage unit located on an upper floor within the building, offering extra convenience and storage capacity.

Location and accessibility
The property is situated at Kijkduinstraat 75 H in the Bos en Lommer district, just behind the Admiraal de Ruijterweg. This quiet and green street is located in a vibrant neighbourhood that has undergone significant development in recent years and is now considered one of the most sought-after areas of the city.

The immediate surroundings offer a wide and diverse selection of shops, specialty stores, and restaurants. For daily groceries, Bos en Lommerweg and Bos en Lommerplein are nearby, where a market is held several days a week. There are also numerous popular cafés and restaurants within walking distance, including Friedhats FUKU Café, Abbey, the trendy No Man’s Art Gallery, Bara Pepe, and the French bakery Farine.

For relaxation and recreation, Erasmuspark and Westerpark are both within close proximity, while Rembrandtpark and Amsterdam’s city centre can be reached within approximately 10 minutes by bicycle.

Accessibility is excellent. Sloterdijk Station is a short cycling distance away, offering fast connections to Schiphol Airport and Amsterdam Central Station. In addition, several tram and bus lines are located nearby. By car, the A10 ring road and major highways such as the A4, A5, and A8 are easily and quickly accessible.

Details
- Apartment of approx. 120 m² (measured in accordance with NEN2580);
- Southwest-facing garden of approx. 44 m²;
- Four bedrooms, including a master bedroom with en-suite walk-in closet;
- Balconies at both the front and rear;
- Kitchen installed in 2021, with built-in appliances renewed in 2026;
- Active and professionally managed homeowners’ association (VvE);
- Monthly service charges: €273.33,-;
- Energylabel D;
- Leasehold property;
- Ground rent has been prepaid until 31 December 2050 (AB 1994);
- Application for conversion to perpetual leasehold has been submitted;
- Delivery in consultation.

We have gathered this information with the greatest of possible care. However, we will not accept any liability for any incompleteness, inaccuracy or any other matter nor for the consequences of such. All measurements and surfaces stated are indicative. The purchaser has a duty to investigate any matter that may be of importance to him or her. The estate agent is the adviser to the seller with regard to this residence. We advise you to engage an expert (NVM registered) estate agent who will guide you through the purchasing process. Should you have any specific desires with regard to the residence, we advise you to make these known as soon as possible to your purchasing estate agent and have an independent investigation carried out into such matters. If you do not engage an expert, you will be deemed as considering yourself to be sufficiently expert to be- to oversee all matters that could be important. The NVM conditions apply.

Features

Transfer of ownership
Asking Price
€ 1.050.000 k.k.
Status
beschikbaar
Acceptance
in overleg
Construction
Kind of house
Benedenwoning
Building type
appartement
Construction period
1934
Energy rating
D
Roof type
plat dak
Bedrooms
4
Bathrooms
1
Surface Areas And Volume
Living Area
120 m2
Other indoor space
0 m2
Exterior space attached to the buildinge
7 m2
External storage space
11 m2
Volume in cubic meters
426 m3
Facilities
Mechanische ventilatie
Tv kabel
Aan rustige weg
In woonwijk
Baerz & Co Property Brochure

Brochure

Videos

Graal Makelaardij

Rapenburg 4
2311 EV Leiden

info@graalmakelaardij.nl
+31 (0)71 51 61 000

www.graalmakelaardij.nl

Information / Viewing request

Michiel de Jong RM profile image
Michiel de Jong RM
Real Estate Agent

Buying a Luxury Property in Amsterdam

Amsterdam offers a cosmopolitan lifestyle defined by heritage, connectivity, and discreet luxury. Residents benefit from a robust international community, curated services, and vibrant culture. The city’s enduring appeal lies in its blend of history, sophistication, and progressive spirit.