Baerz & Co is een landelijk samenwerkingsverband van zorgvuldig geselecteerde boutique luxury makelaars. Samen vormen wij één netwerk, met één gedeeld aanbod. De woningen die u op onze website ziet, zijn afkomstig van alle aangesloten kantoren binnen Baerz & Co. Daardoor is niet ieder object rechtstreeks door ons kantoor in verkoop, maar door een gespecialiseerde collega binnen ons netwerk. Heeft u een woning gevonden die u aanspreekt en wilt u meer informatie? Dan brengen wij u graag persoonlijk in contact met de betreffende verkoopmakelaar, zodat u direct en zorgvuldig wordt begeleid.

AMSTELVEEN
Olympiadelaan 16 - 1183 WN
Netherlands

€2,750,000
Living Area
643m2
Plot Size
1069m2
Bedrooms
4

Description

Olympiadelaan 16, 1183 WN Amstelveen

On one of the most beautiful green edges of Amstelveen, directly bordering the vast Middelpolder nature reserve, stands this spacious detached villa with approx. 643 m² of living space.

With a generous garden of approx. 707 m², multiple terraces and panoramic views over the surrounding landscape, this is a true dream home for the bon vivant. The villa offers private on-site parking and a detached garage suitable for two cars. Thanks to the many living areas and exceptional layout, the property is ideally suited for combining living and working without compromising privacy or comfort.

A unique property in an exceptional location, where tranquillity, space and nature come together just minutes from Amsterdam.

Layout
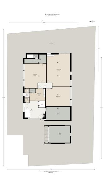
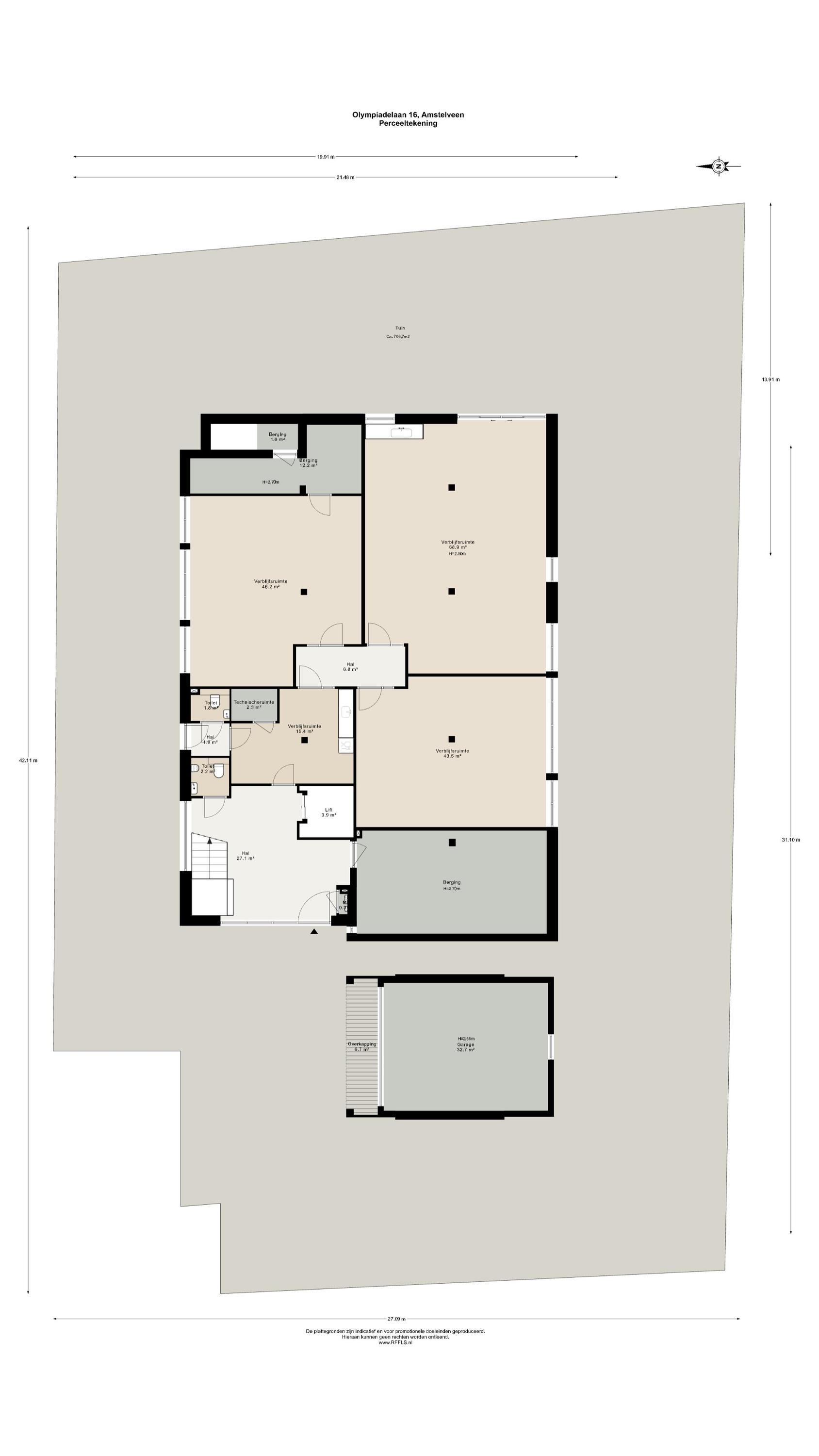
Ground Floor

Through the entrance at either the front or side of the house, you reach a spacious hall with wardrobe and access to all rooms on this level. With the presence of a lift, the property is easily accessible for people with reduced mobility and perfectly designed for age-proof living.

The ground floor includes three generous living spaces, each with large windows offering direct views of the beautifully landscaped garden surrounding the home. These rooms can be arranged entirely to your own wishes for example as living areas, a playroom, studio, lounge or bedroom. Centrally located is a large pantry with all necessary connections, providing the option to install a fully equipped kitchen if desired.

This level also includes two spacious storage rooms and two separate toilets, both with washbasins.

First Floor

The first floor is accessed via a wide landing and offers three generous living areas. At the rear of the home is an exceptionally large room currently used as a living room, with an adjacent bright kitchen area. From this living floor you step directly onto the generous balcony, which can also be reached from the garden. From here, the view over the Middelpolder is truly spectacular.

This floor also includes a large bedroom with an en-suite bathroom fitted with a bathtub, shower, toilet and double washbasin. Additionally, there are two separate toilets and a practical storage room.

Second Floor

The second floor offers no fewer than four spacious rooms, flexibly usable as bedrooms, workspaces, hobby rooms or guest accommodation. Three of these rooms have their own en-suite bathroom, providing optimal comfort and privacy on this level.

There is also a separate laundry room with connections for a washing machine and dryer, two separate toilets and two balconies with views of the green surroundings.

Outdoor Space

The villa features multiple terraces across various levels, including two exceptionally large rooftop terraces with unobstructed views over the Middelpolder. The surrounding garden is mature, carefully landscaped and offers optimal privacy thanks to the unique location on the edge of the open landscape. Finally, the property includes a detached garage with space for two cars.

Location

Olympiadelaan 16 is located on a quiet, low-traffic street in the green and sought-after neighbourhood of Kostverloren, just steps from the Middelpolder nature reserve. This expansive landscape stretches all the way to the River Amstel and toward Ouderkerk—a beautiful setting for walking, running, cycling or simply enjoying the open, almost rural surroundings. It is a place where nature and city meet in a rare and harmonious way.

The home is centrally located for all daily amenities. The Kostverlorenhof and Bankrashof shopping centres are within walking distance. The luxury Stadshart Amstelveen shopping centre is only a few minutes away by bike, while the Gelderlandplein in Amsterdam South is a ten-minute ride. A variety of (international) schools, childcare facilities, sports clubs and recreational options are also nearby, making this location particularly attractive for families and expats.

Accessibility

The accessibility is excellent. Tram line 25 is just a short walk away, offering a direct connection to Amsterdam Zuid, Station RAI and Amsterdam Central. Several bus lines to Amsterdam, Schiphol, Uithoorn and Amstelveen also operate nearby. By car, the A10 South, A9, A4 and A2 motorways can be reached within minutes, providing fast and convenient links to Amsterdam, Schiphol, The Hague, Utrecht and Haarlem.

Legal Property Description
1. The residence with land and garden, located at 1183 WN Amstelveen, Olympiadelaan 16, cadastral municipality Amstelveen, section I number 6390, measuring 10 ares and 69 centiares.
2. The undivided half share of the jointly owned plot of land located at Olympiadelaan, Amstelveen, cadastral municipality Amstelveen, section I number 6389, measuring 1 are and 56 centiares.

Details
- Living area approx. 643 m² (measured in accordance with NEN 2580);
- Detached garage of approx. 33 m²;
- Surrounding garden of approx. 707 m²;
- Built in 2001;
- 26 solar panels;
- Energylabel A;
- Detached villa on freehold land;
- Beautifully landscaped, sunny garden and rooftop terraces;
- Parking on the driveway, in front of the house or in the garage;
- Transfer subject to agreement.

This information has been compiled with the utmost care. However, no liability is accepted for any incompleteness, inaccuracies, or otherwise, nor for the consequences thereof. All measurements and surfaces provided are indicative. The buyer has a duty to investigate all matters that are important to them. With regard to this property, the broker acts as the advisor to the seller. We recommend engaging a qualified (NVM) real estate agent to guide you through the purchasing process. Should you have specific requirements regarding the property, we advise you to make these known in good time to your purchasing agent and to (have them) carry out independent research. If you do not engage an expert representative, the law assumes you are sufficiently knowledgeable to oversee all matters of importance. The NVM conditions apply.

Features

Solar panels
Alarm system
Transfer of ownership
Asking Price
€ 2.750.000
Status
beschikbaar
Acceptance
in overleg
Construction
Kind of house
Villa
Building type
vrijstaande woning
Construction period
2001
Energy rating
A
Roof type
plat dak
Bedrooms
4
Bathrooms
6
Surface Areas And Volume
Living Area
643 m2
Other indoor space
0 m2
Exterior space attached to the buildinge
103 m2
External storage space
33 m2
Volume in cubic meters
2201 m3
Plot Size
1069 m2
Facilities
Mechanische ventilatie
Alarminstallatie
Lift
Schuifpui
Zonnepanelen
Natuurlijke ventilatie
Baerz & Co Property Brochure

Brochure

Videos

Graal Makelaardij

Rapenburg 4
2311 EV Leiden

info@graalmakelaardij.nl
+31 (0)71 51 61 000

www.graalmakelaardij.nl

Information / Viewing request

Michiel de Jong RM profile image
Michiel de Jong RM
Real Estate Agent

Buying a Luxury Property in Amstelveen

Amstelveen offers refined residences, a cosmopolitan atmosphere, and exceptional connectivity. The blend of green areas, international amenities, and community sophistication continues to captivate global buyers and families seeking both privacy and vibrant urban connections.