Baerz & Co is een landelijk samenwerkingsverband van zorgvuldig geselecteerde boutique luxury makelaars. Samen vormen wij één netwerk, met één gedeeld aanbod. De woningen die u op onze website ziet, zijn afkomstig van alle aangesloten kantoren binnen Baerz & Co. Daardoor is niet ieder object rechtstreeks door ons kantoor in verkoop, maar door een gespecialiseerde collega binnen ons netwerk. Heeft u een woning gevonden die u aanspreekt en wilt u meer informatie? Dan brengen wij u graag persoonlijk in contact met de betreffende verkoopmakelaar, zodat u direct en zorgvuldig wordt begeleid.

'S-HERTOGENBOSCH
Sint Janskerkhof 19 - 5211 LA
Netherlands

Michiel de Jong RM profile image
Michiel de Jong RM
Real Estate Agent
€825,000 k.k.
Living Area
125m2
Plot Size
N/A
Bedrooms
3

Description

Wonen op een van de meest bijzondere plekken van ’s-Hertogenbosch

Aan het idyllische Sint Janskerkhof, pal naast de Sint-Janskathedraal, ligt deze ruime en karaktervolle bovenwoning van ca. 125 m² met dakterras. Een unieke combinatie van rust, historie en stadsleven, midden in de binnenstad maar toch verrassend stil.

Monumentale bomen, kinderkopjes in de straat en vrijwel alleen bestemmingsverkeer zorgen voor een serene sfeer, terwijl de Parade, de Markt, het centrum en het Bossche Broek allemaal op loopafstand liggen.

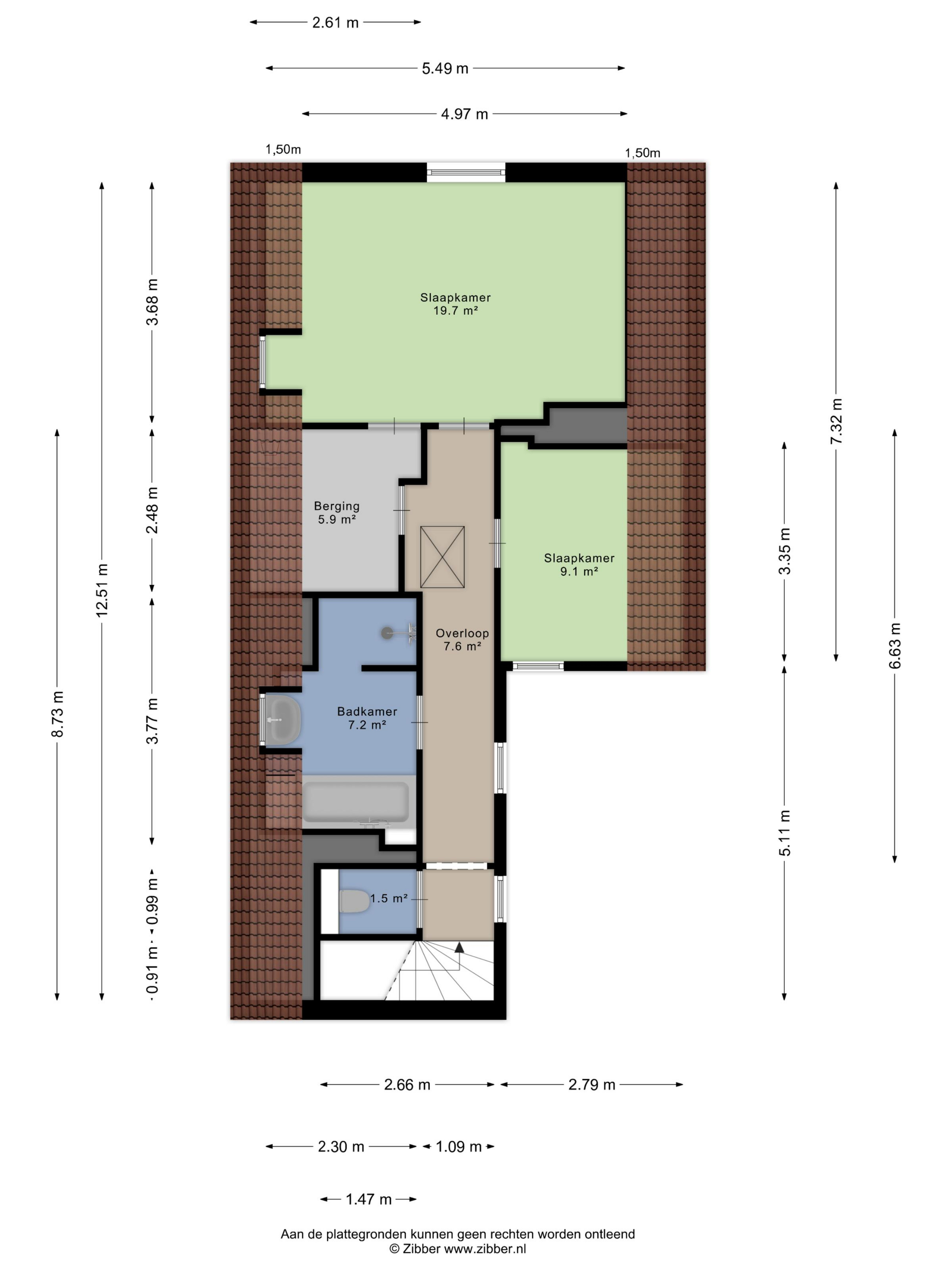
Indeling
Begane grond
Eigen entree met exclusieve hal, voorzien van fraaie Winckelmans-tegels en ruimte voor garderobe én fiets.

Woonvloer
De woonkamer ligt op de hoek en heeft daardoor een mooi uitzicht op de Sint-Jan én het pleintje ernaast. De semi-open keuken is verbonden zonder dat je het gevoel hebt in de kamer te staan koken. Daarnaast bevindt zich op deze verdieping, naast het dakterras, ook een extra kamer, ideaal als werk- of logeerkamer.

Tweede verdieping
Twee slaapkamers, waarvan aan de hoofdslaapkamer een inloopkast ligt. De badkamer is in 2011 vernieuwd en voorzien van een ligbad, royale inloopdouche en wastafel – uiteraard met uitzicht op de Sint-Jan.
Ook het tweede toilet is hier apart van de badkamer.

Parkeren is mogelijk met vergunning of op een steenworp afstand in de parkeergarage Sint-Jan.

Een woning als deze komt zelden beschikbaar: royaal, sfeervol en gelegen op een heel bijzonder plekje.

Features

Transfer of ownership
Asking Price
€ 825.000 k.k.
Status
beschikbaar
Acceptance
in overleg
Construction
Kind of house
Bovenwoning
Building type
appartement
Construction period
1957
Energy rating
C
Roof type
dwarskap
Bedrooms
3
Bathrooms
1
Surface Areas And Volume
Living Area
125 m2
Other indoor space
2 m2
Exterior space attached to the buildinge
7 m2
Volume in cubic meters
419 m3
Facilities
Dakraam
Aan rustige weg
In centrum
Vrij uitzicht
Beschutte ligging
Baerz & Co Property Brochure

Brochure

Floor Plans

Graal Makelaardij

Rapenburg 4
2311 EV Leiden

info@graalmakelaardij.nl
+31 (0)71 51 61 000

www.graalmakelaardij.nl

Information / Viewing request

Michiel de Jong RM profile image
Michiel de Jong RM
Real Estate Agent

Buying a Luxury Property in 's-Hertogenbosch

's-Hertogenbosch offers a refined blend of history, culture, and contemporary living, attracting a globally minded community who value privacy, aesthetics, and seamless services within a vibrant, authentic Dutch environment.